Beneath Us.
Winter 2019Type
Natatorium
Location
Toronto, Canada
[In collaboration with Yahya Abdullah]
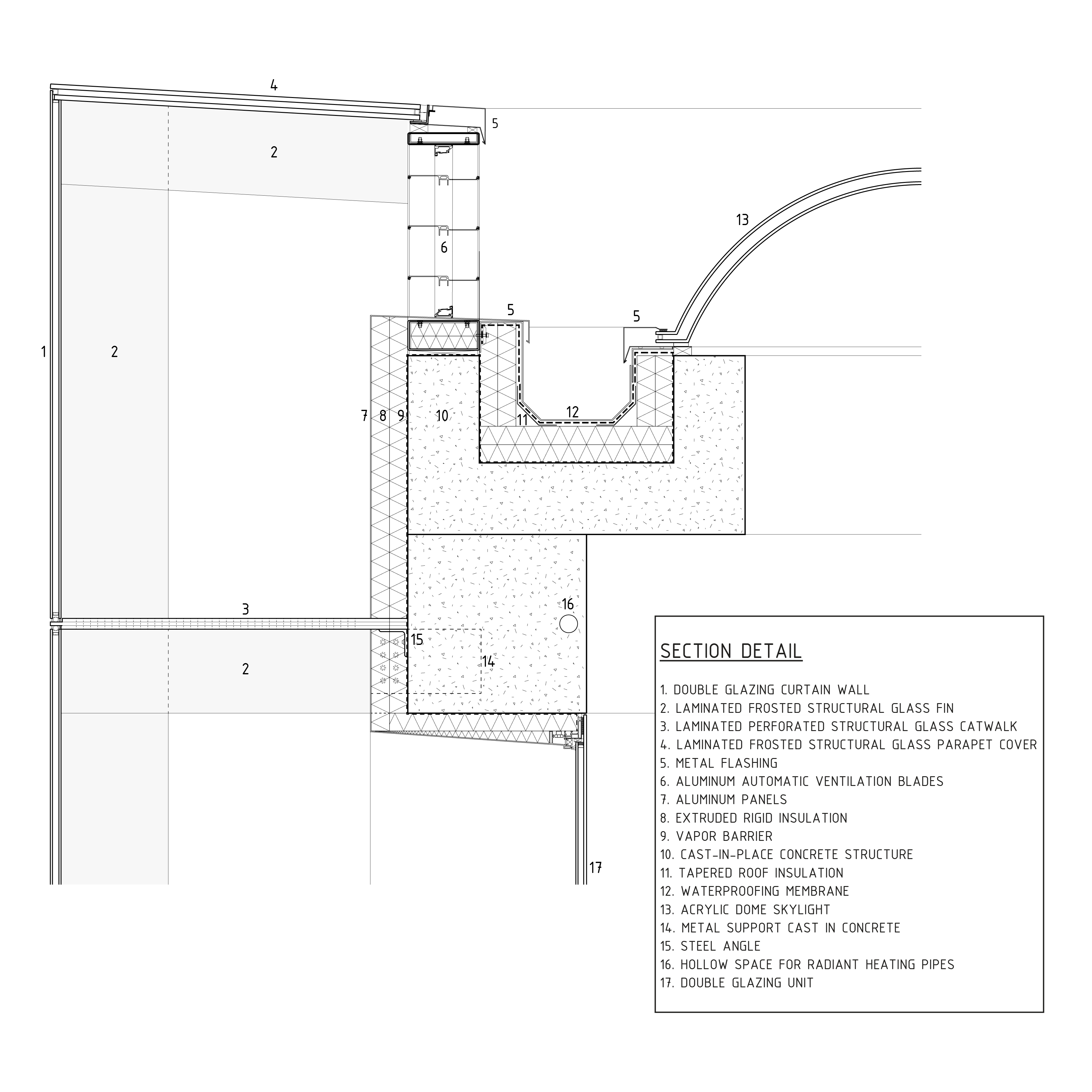
Description
To float; an act paralleling the human desire to rid gravity’s individual pull on the body. One can imagine experiencing serenity or intensity depending on how water is engaged; a natatorium may truly become a space for varying levels of passion. The key characteristic of the project derivation is apparent through investigations of two juxtaposing systems; the duality of solid and void as a material and spatial relationship, ties the project to an overarching curiosity of time, space, light and water.












